Interior
Pages
Enter your address or APN to check if this home fits on your property
Enter your property street address or APN
Exterior
Kitchen
Bathroom
Construction
Images of homes are solely for illustrative purposes and should not be relied upon. Images may not accurately represent the actual condition of a home as constructed, and may contain options which are not standard on all homes.
$189K
|$1.3K/mo
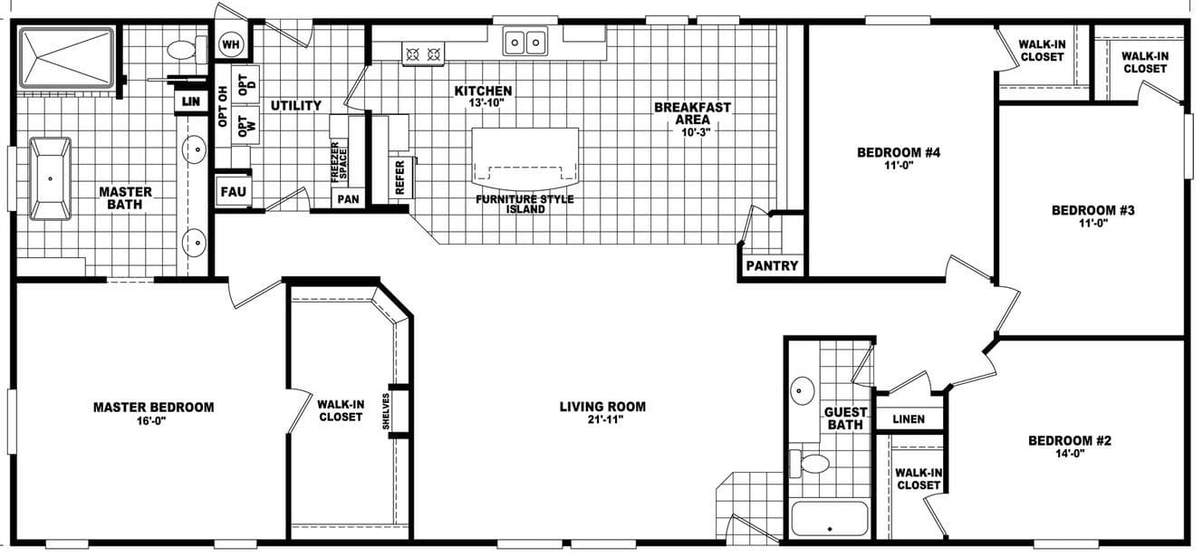
4 Bed | 2 Bath | 2,125 Sq. Ft. | 31' 3" x 68'
$202K
|$1.4K/mo
4 Bed | 2 Bath | 2,187 Sq. Ft. | 31' 3" x 70'
$169K
|$1.2K/mo
4 Bed | 2 Bath | 2,000 Sq. Ft. | 31' 3" x 64'
$156K
|$1.1K/mo
4 Bed | 2 Bath | 1,760 Sq. Ft. | 26' 8" x 66'