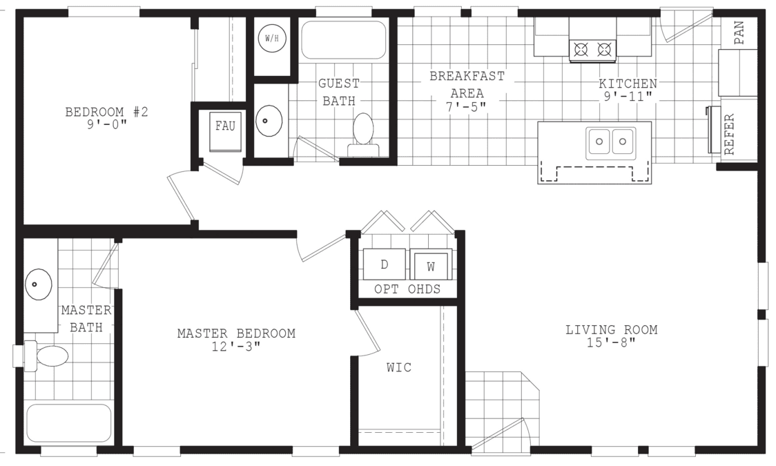
Homes | Sierra Value 24402A