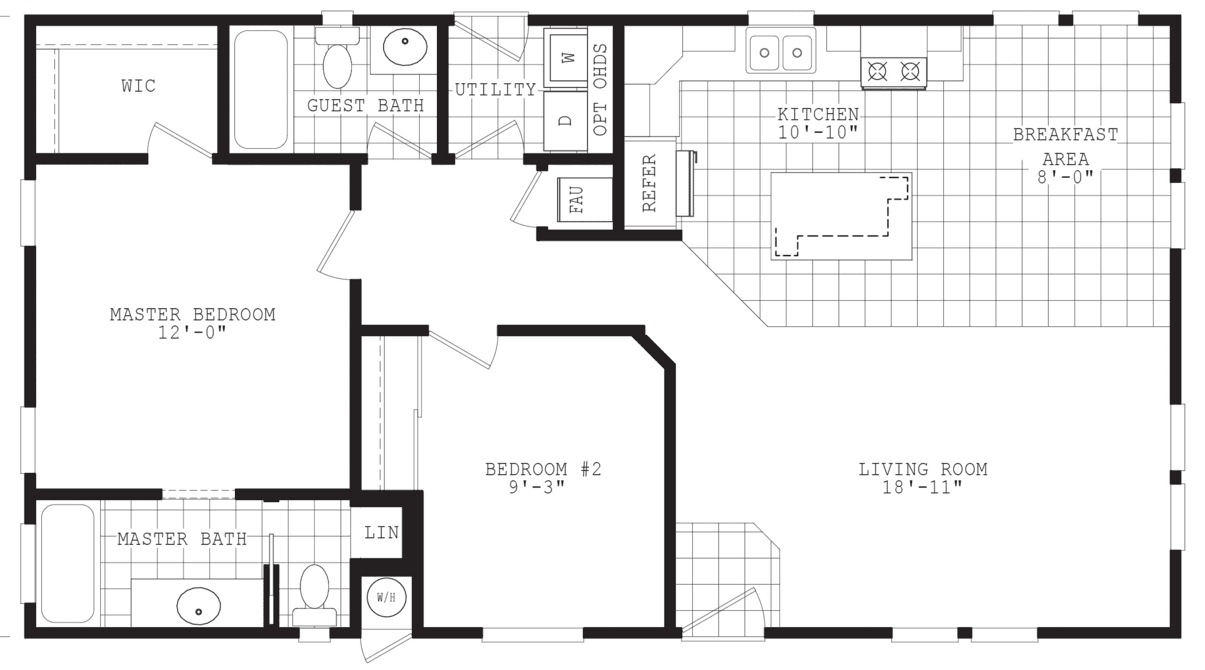
Homes | Sierra Value 24442A