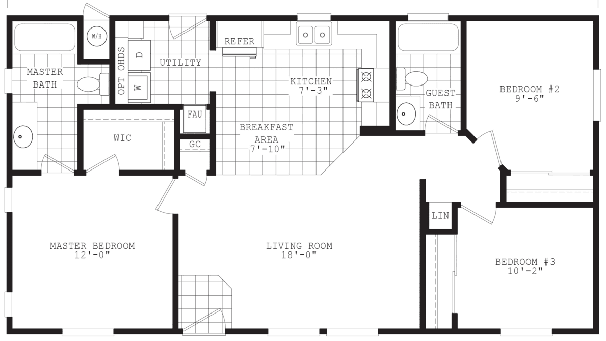
Homes | Sierra Value 24443B