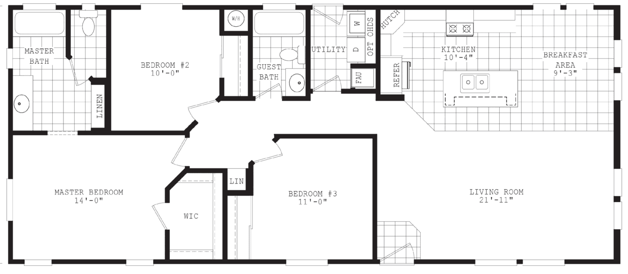
Homes | Sierra Value 24563A