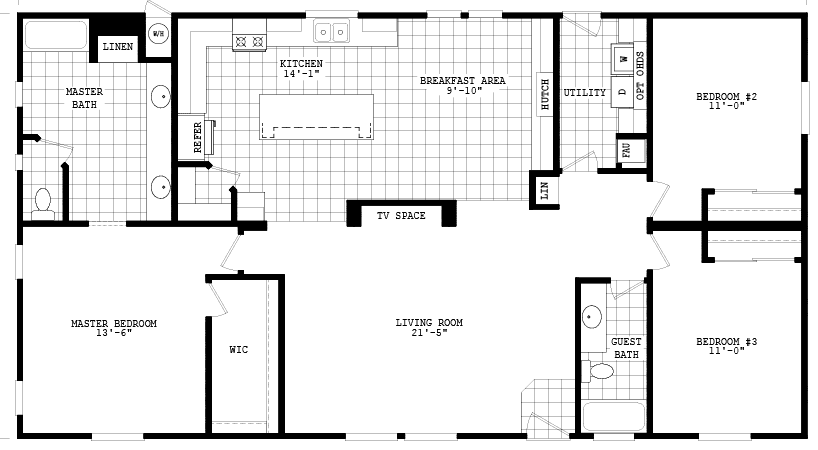
Homes | Sierra Value 32583A