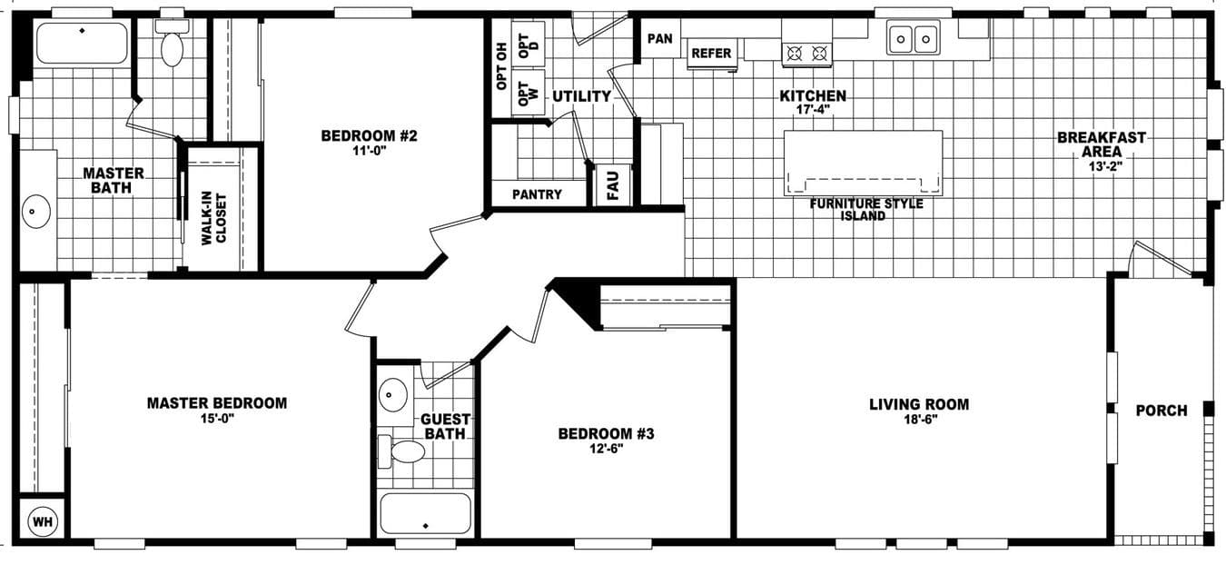
Homes | Westin Porch 28603A