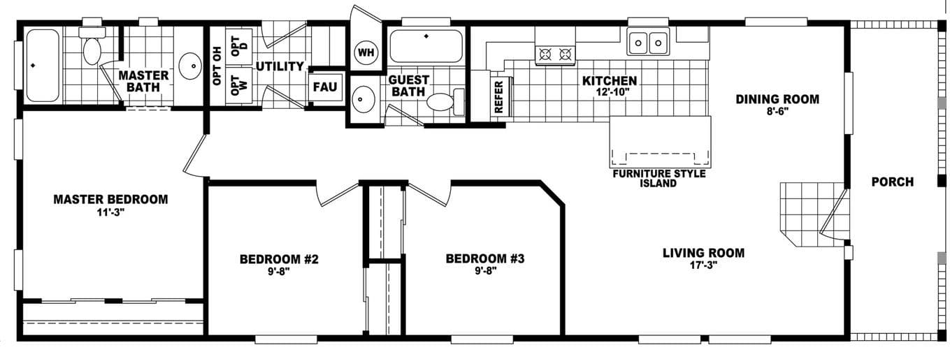
Homes | Wide Homes 20583A