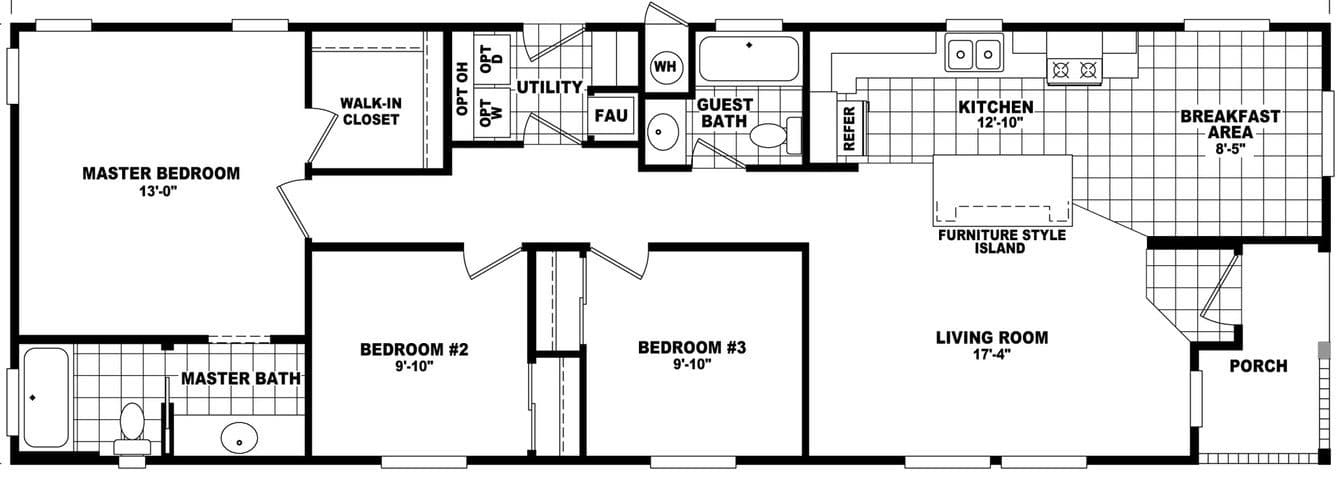
Homes | Wide Homes 20603B