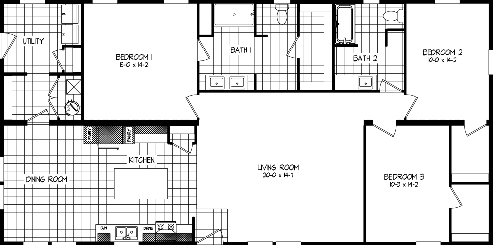
Homes | Bryce