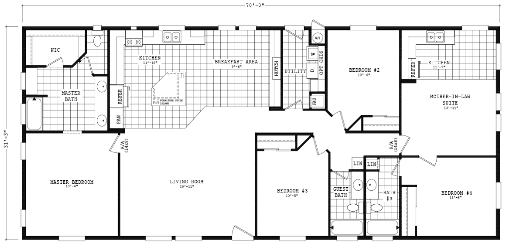
Homes | Sierra Value 32704D