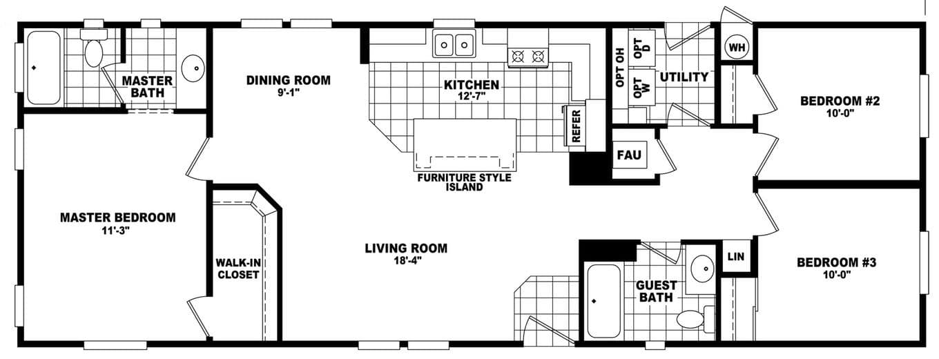
Homes | Wide Homes 20563B